LS型螺旋輸送機等級采用ISO1050標準設計,制造符合ZBJ81005.1~2-88專業標準。結構新穎,頭、尾部軸承移至殼體外,中間吊軸承采用滾動、滑動可以互換兩種結構,均設防塵密封裝置,進、出料口位置布置靈活,整機噪音低,適應性強,操作維修方便。該機采用的密封件是尼龍和聚四氟乙烯樹脂類,具有阻力小,密封、耐磨性能好等特點。選用滑動的軸瓦材料有鑄銅瓦、合金耐磨鑄鐵、銅基石墨少油潤滑瓦等幾種供選擇。
二、規格、技術參數表
|
規格型號 |
100 |
160 |
200 |
250 |
315 |
400 |
500 |
630 |
800 |
1000 |
1250 |
|
螺旋直徑(mm) |
100 |
160 |
200 |
250 |
315 |
400 |
500 |
630 |
800 |
1000 |
1250 |
|
螺距(mm) |
100 |
160 |
200 |
250 |
250 |
355 |
400 |
450 |
500 |
560 |
630 |
|
轉速(r/min) |
140 |
112 |
100 |
90 |
80 |
71 |
63 |
50 |
40 |
32 |
25 |
|
輸送量(m³/h) |
2.2 |
7 |
13 |
22 |
31 |
62 |
98 |
140 |
200 |
280 |
380 |
|
轉速(r/min) |
112 |
90 |
80 |
71 |
63 |
56 |
50 |
40 |
32 |
25 |
20 |
|
輸送量(m³/h) |
1.7 |
6 |
10 |
18 |
24 |
49 |
78 |
112 |
160 |
220 |
306 |
|
轉速(r/min) |
90 |
71 |
63 |
56 |
50 |
45 |
40 |
32 |
25 |
20 |
16 |
|
輸送量(m³/h) |
1.4 |
5 |
8 |
14 |
19 |
39 |
62 |
90 |
126 |
176 |
245 |
|
轉速(r/min) |
71 |
50 |
50 |
45 |
40 |
36 |
32 |
25 |
20 |
16 |
13 |
|
輸送量(m³/h) |
1.1 |
3.1 |
6.2 |
11 |
15.4 |
31 |
50 |
77 |
102 |
140 |
198 |
一批正在加工中的LS螺旋輸送機 一批已完工的LS螺旋輸送機
三、驅動裝置選配.
該機驅動采用XWD系列擺線針輪減速機,有單端驅動(C1制法)和雙端驅動(C2制法)兩種方式,螺旋機長度小于35m的按C1制法,即單端驅動。螺旋機的中間吊軸承分滾動軸承(M1制法)和滑動吊軸承(M2制法)兩種。輸送物料≤80℃的一般采用M1制法,>80℃的宜選用M2制法。
一、外形尺寸

|
規格型號 |
F |
E |
W |
L |
L1 |
L3 |
G |
L |
Q |
Y |
N |
K |
R |
S |
Z |
O |
H |
V |
J |
P |
T |
|
LS100 |
2500 |
2500 |
2500 |
2480 |
250 |
2640 |
1500
2000
2500 |
500
2000
2500 |
180 |
180 |
63 |
112 |
180 |
112 |
40 |
178 |
120 |
160 |
14 |
60 |
163 |
|
LS160 |
2500 |
2500 |
2500 |
2480 |
2500 |
2640 |
200 |
180 |
90 |
150 |
200 |
150 |
50 |
266 |
120 |
160 |
14 |
60 |
190 |
|
LS200 |
2500 |
2500 |
2500 |
2480 |
2500 |
2640 |
225 |
180 |
112 |
180 |
225 |
180 |
60 |
320 |
160 |
200 |
14 |
60 |
212 |
|
LS250 |
3000 |
3000 |
3000 |
2980 |
3000 |
3140 |
250 |
200 |
140 |
224 |
250 |
224 |
70 |
370 |
200 |
250 |
16 |
60 |
240 |
|
LS315 |
3000 |
3000 |
3000 |
2980 |
3000 |
3140 |
330 |
220 |
180 |
280 |
390 |
250 |
80 |
443 |
300 |
350 |
20 |
60 |
340 |
|
LS400 |
3000 |
3000 |
3000 |
2980 |
300 |
3140 |
350 |
227 |
224 |
355 |
390 |
280 |
90 |
533 |
320 |
400 |
24 |
60 |
384 |
|
LS500 |
3000 |
3000 |
3000 |
3000 |
3000 |
3160 |
2000
2500
3500 |
2000
2500
3500 |
400 |
250 |
280 |
400 |
400 |
340 |
105 |
653 |
400 |
500 |
24 |
80 |
440 |
|
LS630 |
3000 |
3000 |
3000 |
3000 |
3000 |
3160 |
450 |
300 |
355 |
500 |
450 |
420 |
120 |
790 |
500 |
630 |
24 |
80 |
555 |
|
LS800 |
3000 |
3000 |
3000 |
3000 |
3000 |
3160 |
550 |
340 |
450 |
630 |
550 |
520 |
135 |
970 |
632 |
800 |
30 |
80 |
650 |
|
LS1000 |
3000 |
3000 |
3000 |
3000 |
3000 |
3160 |
650 |
360 |
560 |
710 |
650 |
630 |
150 |
1190 |
710 |
1000 |
30 |
80 |
760 |
|
LS1250 |
3000 |
3000 |
3000 |
3000 |
3000 |
3160 |
800 |
380 |
710 |
800 |
800 |
760 |
170 |
1440 |
800 |
1250 |
30 |
80 |
910 |

|
參數 |
LS160 |
LS200 |
LS250 |
LS315 |
LS400 |
LS500 |
LS630 |
LS800 |
LS1000 |
LS1250 |
|
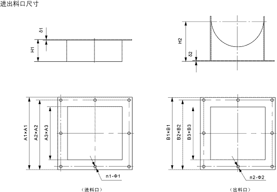
A1 |
246 |
306 |
356 |
444 |
528 |
658 |
794 |
960 |
1160 |
1410*1160 |
|
A2 |
226 |
272 |
330 |
394 |
492 |
608 |
752 |
888 |
1090 |
1338*1090 |
|
A3 |
180 |
220 |
270 |
334 |
420 |
524 |
660 |
800 |
1000 |
1250*1000 |
|
H1 |
75 |
100 |
120 |
140 |
160 |
160 |
180 |
180 |
200 |
200 |
|
δ1 |
3 |
3 |
3 |
4 |
4 |
4 |
6 |
6 |
8 |
8 |
|
n1 |
8 |
8 |
8 |
8 |
8 |
8 |
8 |
16 |
20 |
22 |
|
φ1 |
9 |
9 |
9 |
13 |
13 |
13 |
17 |
14 |
18 |
18 |
|
B1 |
252 |
312 |
374 |
442 |
540 |
666 |
806 |
960 |
1160 |
1410*1160 |
|
B2 |
226 |
272 |
330 |
402 |
496 |
608 |
752 |
888 |
1090 |
1338*1090 |
|
B2 |
186 |
226 |
276 |
342 |
432 |
532 |
668 |
800 |
1000 |
1250*1000 |
|
H2 |
135 |
165 |
195 |
225 |
280 |
340 |
430 |
520 |
630 |
760 |
|
δ2 |
3 |
3 |
4 |
4 |
4 |
4 |
6 |
6 |
8 |
8 |
|
n2 |
8 |
8 |
8 |
8 |
8 |
8 |
8 |
16 |
20 |
22 |
|
φ2 |
9 |
9 |
9 |
13 |
163 |
17 |
17 |
14 |
18 |
18 |
|
R |
93 |
113 |
138 |
171 |
216 |
266 |
334 |
419 |
522 |
647 |